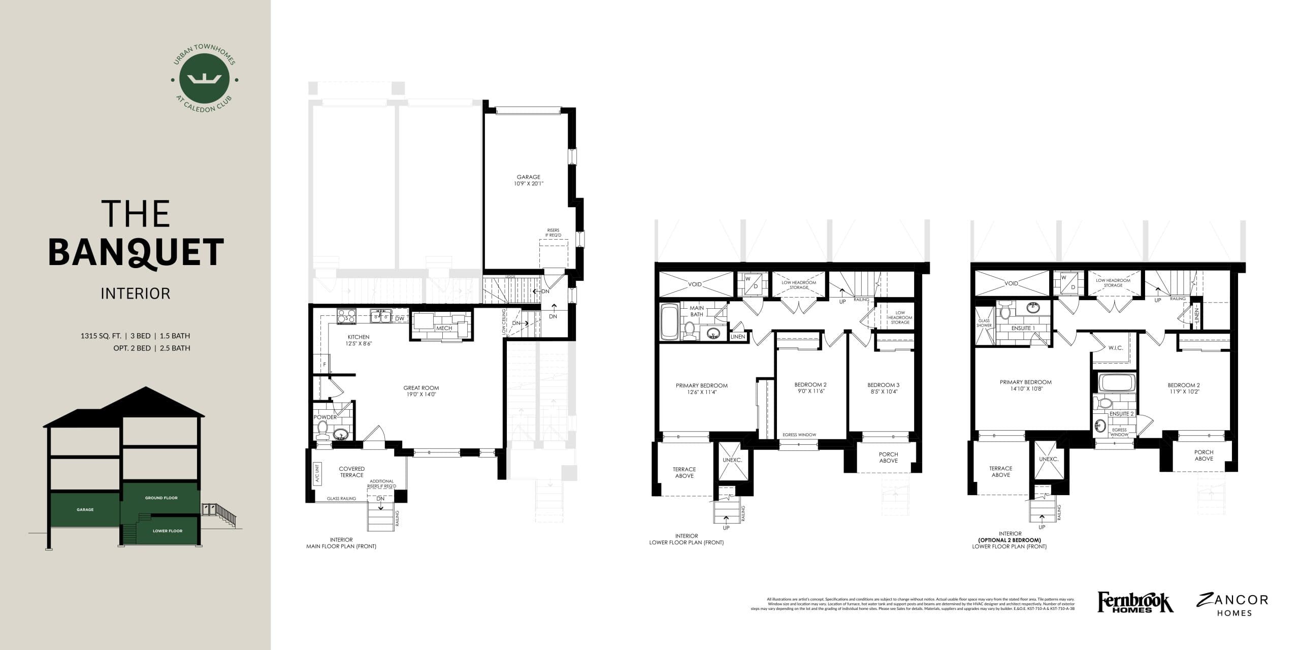
The Banquet - Fernbrook Homes — The Social Towns | Red Bricks